项目介绍
[鼓形齿联轴器-行走机构专用联轴器(CL)]
CL鼓形齿联轴器,行走机构,万向联轴器,齿轮箱用联轴器,电机用联轴器鼓形齿联轴器
l 适用范围多用于天车行走机构;
l 吸收能力强,轴向,角向;
l 传递扭矩大,刚性好;
l 特殊结构可以根据客户要求设计;
l 联轴器材质可以根据客户要求选定;
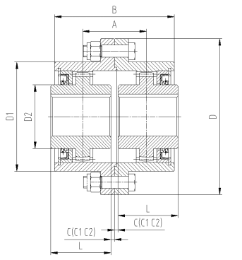
图中尺寸可以根据客户要求制作;其它技术参数可以咨询邦克技术部;
|
型号 |
额定 扭矩 (Nm) |
许用转速 (rpm) |
轴孔直径d1、d2、dz |
轴孔长度L (Y) |
轴孔 长度L (J1 Z1) |
A
|
B
|
D
|
D1
|
D2
|
C Y型 轴孔 |
C1 J1型 轴孔 |
C2 Z1型 轴孔 |
转动 惯量 (kgm^2) |
重量 (Kg) |
|
(mm) |
|
|
|||||||||||||
|
CL1 |
710 |
3780 |
18、19 |
45 |
30 |
49 |
106 |
170 |
110 |
55 |
16 |
- |
- |
0.03 |
7.8 |
|
20、22、24 |
52 |
38 |
6 |
18.5 |
18.5 |
||||||||||
|
25、28 |
62 |
44 |
2.5 |
14 |
18.5 |
||||||||||
|
30、32、35、38 |
82 |
60 |
2.5 |
11 |
- |
||||||||||
|
40 |
112 |
84 |
2.5 |
11 |
- |
||||||||||
|
CL2 |
1400 |
3000 |
30、32、35、38 |
82 |
60 |
75 |
134 |
185 |
125 |
70 |
2.5 |
13 |
22 |
0.05 |
12.5 |
|
40、42、45 |
112 |
84 |
28 |
||||||||||||
|
48、50 |
112 |
84 |
28 |
||||||||||||
|
CL3 |
3150 |
2400 |
40、42、45 |
112 |
84 |
92 |
170 |
220 |
150 |
90 |
2.5 |
15 |
28 |
0.13 |
26.9 |
|
48、50、55、56 |
112 |
84 |
28 |
||||||||||||
|
60 |
142 |
107 |
36 |
||||||||||||
|
CL4 |
5600 |
2000 |
45、48、50 |
112 |
84 |
125 |
200 |
250 |
175 |
110 |
2.5 |
21 |
28 |
0.21 |
34.9 |
|
55、56 |
112 |
84 |
21 |
28 |
|||||||||||
|
60、63、65、70 |
142 |
107 |
17 |
36 |
|||||||||||
|
71、75 |
142 |
107 |
17 |
36 |
|||||||||||
|
CL5 |
8000 |
1680 |
50、55、56 |
112 |
84 |
145 |
220 |
290 |
200 |
130 |
5 |
30 |
40 |
0.45 |
55.8 |
|
60、63、65、70 |
142 |
107 |
|||||||||||||
|
71、75 |
142 |
107 |
|||||||||||||
|
80、85、90 |
172 |
132 |
|||||||||||||
|
CL6 |
11200 |
1500 |
60、63、65 |
142 |
107 |
160 |
246 |
320 |
230 |
140 |
5 |
25 |
|
0.7 |
79.9 |
|
70、71、75 |
142 |
107 |
|||||||||||||
|
80、85、90、95 |
172 |
132 |
|||||||||||||
|
100、110 |
212 |
167 |
|||||||||||||
|
CL7 |
18000 |
1270 |
65、70、71、75 |
142 |
107 |
185 |
286 |
350 |
260 |
170 |
5 |
40 |
40 |
1.15 |
109.5 |
|
80、85、90、95 |
172 |
132 |
25 |
45 |
|||||||||||
|
100、110、120 |
212 |
167 |
25 |
45 |
|||||||||||
|
CL8 |
22400 |
1140 |
80、85、90、95 |
172 |
132 |
210 |
325 |
380 |
315 |
190 |
5 |
35 |
45 |
30 |
133.8 |
|
100、110、120 |
212 |
167 |
30 |
||||||||||||
|
130、140 |
252 |
202 |
30 |
||||||||||||
|
CL9 |
28000 |
1000 |
90、95 |
172 |
132 |
220 |
335 |
430 |
365 |
210 |
5 |
30 |
40 |
|
171 |
|
100、110、120、125 |
212 |
167 |
30 |
||||||||||||
|
130、140、150 |
252 |
202 |
30 |
||||||||||||
|
160 |
302 |
242 |
30 |
||||||||||||
|
CL10 |
50000 |
85 |
110、120、125 |
212 |
167 |
245 |
365 |
490 |
420 |
260 |
5 |
30 |
|
30 |
275.8 |
|
130、140、150 |
252 |
202 |
|||||||||||||
|
160、170、180 |
302 |
242 |
|||||||||||||
|
CL11 |
71000 |
750 |
120、125 |
212 |
167 |
280 |
405 |
545 |
470 |
330 |
5 |
40 |
|
35 |
385 |
|
130、140、150 |
252 |
202 |
35 |
||||||||||||
|
160、170、180 |
302 |
242 |
35 |
||||||||||||
|
190、200、220 |
352 |
282 |
35 |
||||||||||||
|
CL12 |
100000 |
660 |
140、150 |
252 |
202 |
350 |
485 |
590 |
520 |
340 |
5 |
45 |
- |
21.25 |
540 |
|
160、170、180 |
302 |
242 |
38 |
||||||||||||
|
190、200、220 |
352 |
282 |
38 |
||||||||||||
|
240、250 |
410 |
330 |
38 |
||||||||||||
|
CL13 |
140000 |
600 |
160、170、180 |
302 |
242 |
375 |
524 |
680 |
590 |
380 |
7.5 |
45 |
- |
40 |
798.3 |
|
190、200、220 |
352 |
282 |
|||||||||||||
|
240、250、260 |
410 |
330 |
|||||||||||||
|
280 |
470 |
380 |
|||||||||||||
|
CL14 |
200000 |
540 |
180 |
302 |
242 |
405 |
565 |
730 |
650 |
420 |
7.5 |
50 |
- |
53.75 |
976.6 |
|
190、200、220 |
352 |
282 |
|||||||||||||
|
240、250、260 |
410 |
330 |
|||||||||||||
|
280、300、320 |
470 |
380 |
|||||||||||||
|
CL15 |
250000 |
480 |
200、220 |
352 |
282 |
480 |
644 |
780 |
700 |
480 |
7.5 |
50 |
- |
81.25 |
1182.5 |
|
240、250、260 |
410 |
330 |
|||||||||||||
|
280、300、320 |
470 |
380 |
|||||||||||||
|
340、360 |
550 |
450 |
|||||||||||||
|
CL16 |
355000 |
425 |
240、250、260 |
410 |
330 |
535 |
720 |
900 |
785 |
530 |
10 |
- |
- |
150 |
1936 |
|
280、300、320 |
470 |
380 |
|||||||||||||
|
340、360、380 |
550 |
450 |
|||||||||||||
|
400 |
650 |
540 |
|||||||||||||
|
CL17 |
560000 |
380 |
260 |
410 |
330 |
625 |
800 |
1000 |
885 |
630 |
10 |
- |
- |
285 |
2700 |
|
280、300、320 |
470 |
380 |
|||||||||||||
|
340、360、380 |
550 |
450 |
|||||||||||||
|
400、420、440、450 |
650 |
540 |
|||||||||||||
|
CL18 |
710000 |
330 |
300、320 |
470 |
380 |
710 |
900 |
1100 |
990 |
710 |
10 |
- |
- |
400 |
3669 |
|
340、360、380 |
550 |
450 |
|||||||||||||
|
400、420、440、450 |
650 |
540 |
|||||||||||||
|
460、480、500 |
650 |
540 |
|||||||||||||


