项目介绍
[膜片联轴器-高速型(BH)]
高速联轴器,超高速联轴器,超高速膜片联轴器,试验台用联轴器,风机用联轴器,膜片联轴器膜片联轴器

l 能够适应高转速旋转;
l 安装方便;
l 使用寿命长;
l 转动惯量小,吸收能力较强;
l 免维护;
l 成品键槽轴孔孔径公差标准为H7,键槽宽公差按照标准JS9;
l 动平衡等级为1.0;
l 特殊结构可以根据客户要求设计;
l 联轴器材质可以根据客户要求选定;
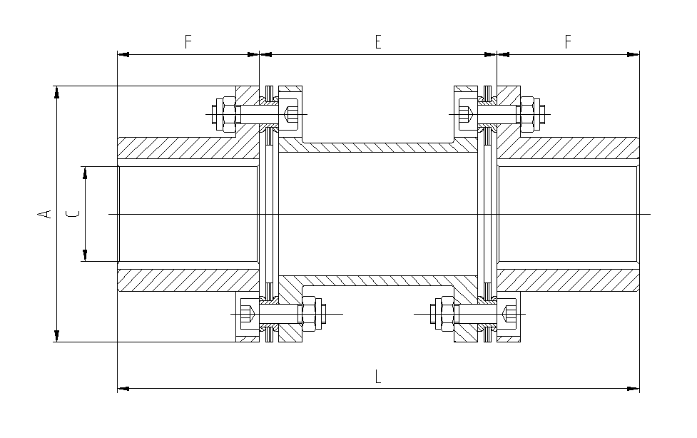
l 图中尺寸可以根据客户要求制作;其它技术参数可以咨询邦克技术部;
|
联轴器型号 |
公称扭矩(Nm) |
峰值扭矩(Nm) |
许用最大转速(rpm) |
A外径(mm) |
C轴孔大小(mm) |
F轴孔长短(mm) |
E(mm) |
L=2*F+E |
|
BH55 |
110 |
220 |
70000 |
55 |
20 |
30 |
50 |
110 |
|
BH75 |
410 |
760 |
68000 |
75 |
30 |
35 |
60 |
130 |
|
BH95 |
880 |
1500 |
55000 |
95 |
40 |
45 |
60 |
150 |



